Freiraumplanung
Schulhof Grundschule Marienmünster
Die Stadt Marienmünster errichtete im Jahr 2020 einen Erweiterungsbau für die Grundschule Marienmünster. Im Rahmen des Neubaus wurde ein neuer Schulhof angelegt.
Neben 2 Hochbeeten wurden neue Spielgeräte, eine Kletterwand und ein kleines Fußballfeld auf vielfachem Wunsch der Schüler angelegt. Wert wurde auch auf barrierefreie Spielgeräte gelegt.
Für die neu eingerichtete Mensa wurden Sitzmöglichkeiten im Außenbereich vorgesehen.
Reha-Zentrum Weserberglandklinik
Eine Reha-Klinik, am Ortsrand der Stadt Höxter gelegen, war aufgrund der alten Bausubstanz mit den letzten Umbauten aus den 70’er Jahren nicht mehr wirtschaftlich zu betreiben.
Deshalb wurde 2018 ein dreiflügeliger Neubau errichtet und das alte Klinikgebäude abgerissen.
Auf dem verbleibenden Gelände wurde eine vielfältig nutzbare Freianlage für die Patienten und Besucher der Klinik mit einem schönen Blick in das Wesertal errichtet.
Freizeithallenbad Marienmünster
Die Freianlagen am Freizeithallenbad waren in die Jahre gekommen und hatten noch den Charme der 70‘er Jahre.
Es wurde ein attraktiverer Eingangsbereich mit einer neuen PKW-Stellplatzfläche, Elektro-Ladesäule und neuen Abstellmöglichmöglichkeiten für Fahrräder geschaffen.
Es wurde ein barrierefreier Zugang geschaffen und Sitzmöglichkeiten laden zum Verweilen ein.
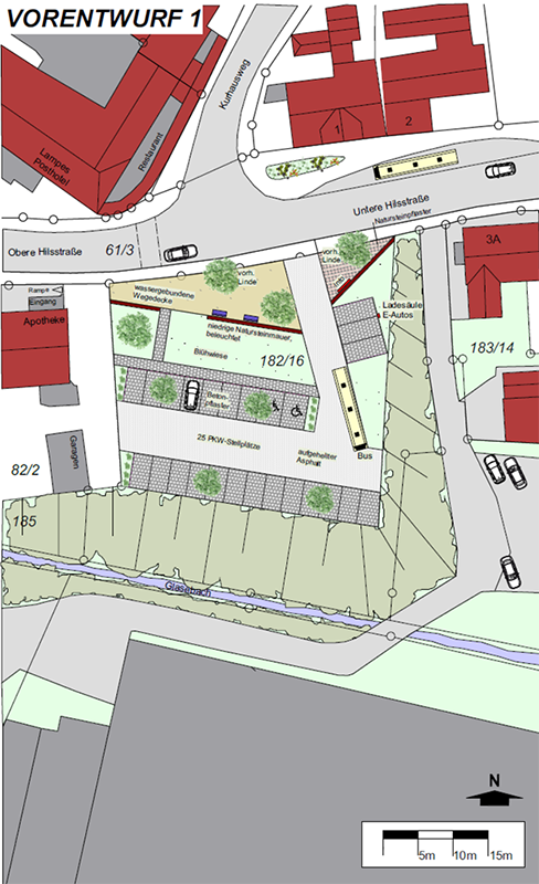
Neugestaltung Ortsmitte Grünenplan
Zur Umgestaltung eines zentralen Bereiches in der Ortsmitte von Grünenplan wurden 2 Vorentwürfe mit folgenden Zielen entwickelt:
- Schaffung eines attraktiven Platzbereiches im zentralen Ortskern mit Sitzbänken und Info-Tafeln für Dorf-Flohmarkt und Weihnachtsmarkt
- Modernisierung des Parkplatzes durch Schaffung von E-Ladesäule und Ausweisung von Stellplätzen für Menschen mit Behinderung
- Raumgliederung durch niedrige Natursteinmauer
- Parkierungsmöglichkeit eines Busses
- Erhalt der vorhandenen Linden durch Aufastung
- Reduzierung des Versiegelungsgrades, Regenwasserversickerung
Diese von der Kommune angeschobenen Vorentwürfe sollen eine Umsetzung und Weiterentwicklung bei einer entsprechenden finanziellen Förderung und dem Einverständnis der Eigentümer erfolgen.























